I recently created a new Hair Salon interior design for a client, who commented that the improvement in lighting proved beneficial to the success of her new salon. The lighting was designed to improve colour rendition so that the hair colouring that was seen inside the salon more closely matched the colour of hairstyles in the natural light outside, and to provide more light where it was needed for staff to see clearly inside.


Another recent project, a Wellness Centre interior design, required the opposite to create the desired effect; low levels of dimmable lighting, with emphasis on indirect concealed lighting to set the ‘mood’ of the space.
Lighting design is a not-so-obvious aspect of Interior Design that creates a huge impact on how a space feels like to be lived in that is under appreciated.
A qualified Interior Designer will take into account a number of factors when selecting lighting for a project. One of the deliverables for a project is a Reflected Ceiling Plan (or RCP). Your Interior Designer takes on the responsibility of the role of coordinating all of the specialised services, which requires literally years of on-the-job experience on the designer’s part to have a basic knowledge of multiple disciplines mechanical, security, acoustics, fire, lighting, electrical and structural services. Very few other professional fields require this level and diversity of all-round technical know-how, that is so misunderstood.

The Importance of the RCP
I cannot understate the importance of the RCP. Your designer will consider how lighting is configured with furniture & built in cabinetry, height of ceilings, colour of wall, floor & ceiling finishes and how they reflect light, light colour temperature and the required Lux levels, which light fittings will suit the space, what type of light bulbs are required in each fixture, alignment with other ceiling services, size & proportion of fixtures, the shadows cast, and numerous other factors. The RCP plan is the representation of the design. These are some of the considerations that your designer will make when designing your space. As you can see, its not all about choosing a pretty chandelier!
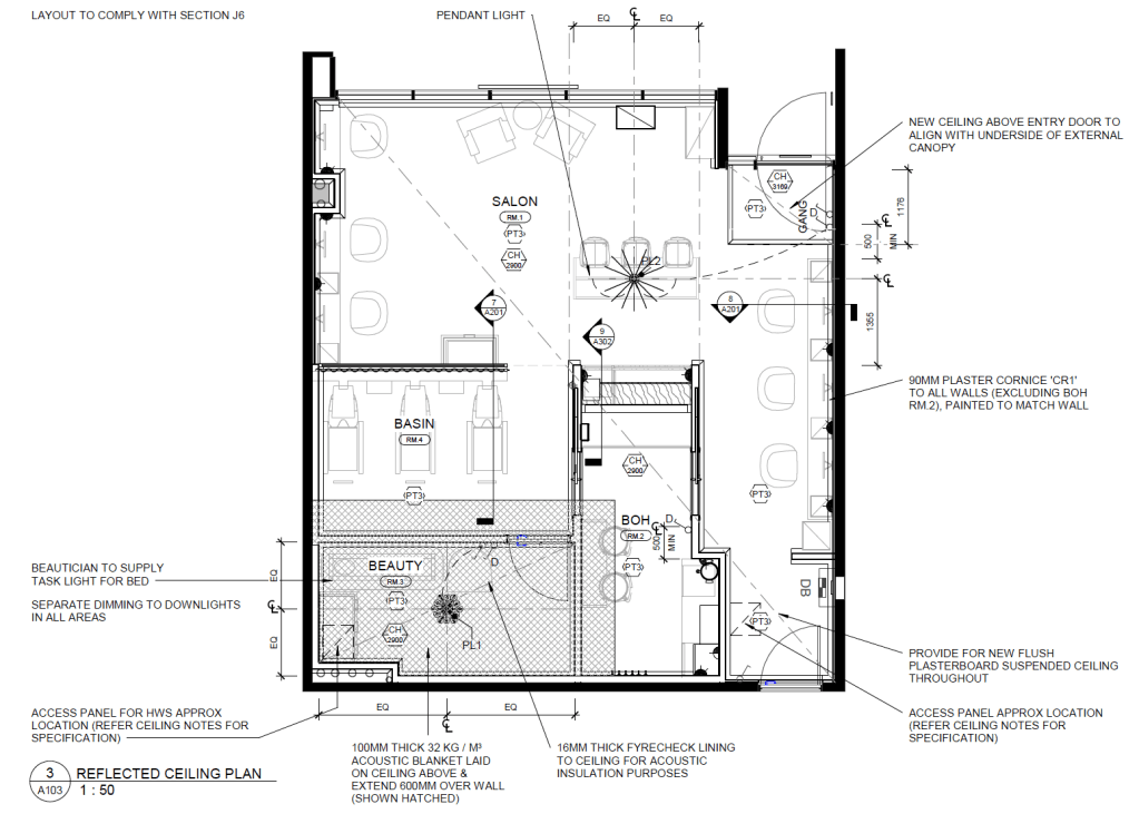
Below is a typical architectural RCP plan for a boutique hair salon, plus an extract of the engineer’s electrical layout with my coordination comments that were sent back to the engineer for revision.
These 2 plans are then combined at construction time to create the coordinated ceiling plan so that services are lined up & look neat, nothing overlaps, access panels are considered, and all trades contractors on site are aware of what each other is doing.
So much more than just ‘choosing a pretty chandelier’!
When I design the lighting for a client’s project, part of the process involves consideration of the function of a space. I analyse each area and determine the right amount of light required in that area depending on how the space is used (referred to as the Lux level).
For example a corridor only needs 40 Lux, whereas a kitchen requires 240 lux and a meeting room needs 320 lux delivered right over the work areas. As you can see, the levels needed for safe & practical work vary widely, yet most standard homes have too little light, and most Commercial spaces generally have too much, all evenly spaced with complete disregard of function.
Therefore, it makes sense to provide task lighting to key areas that deliver the right amount of light levels for tasks whiles creating a statement, without wasting valuable energy lighting up the entire space like a Christmas tree which is unnecessary and even undesirable. A kitchen island bench & a meeting table require light directly above the work surface, which can be efficiently delivered with pendant lighting. Statement lighting can be connected to a dimmer & separately switched from ambient lighting to provide further functionality. When you consider that ‘lighting in homes consume 8-15% of the average household electricity budget’2, thoughtful lighting design is important.
In addition to this, ambient lighting (usually down lights or indirect lighting) are great in darker winter weather or at night when light from windows and lamps is not sufficient, and for those times when your doing something like cleaning or vacuuming. Connecting lights to a dimming switch, both saves energy and allows you to set the ‘mood’ of the space.
The benefit of Considering Light Temperature
Your designer will also consider if warm (2700 – 3000K like an old fashioned incandescent bulb), or cool colour (4000K – 5000K like a fluorescent light), temperature lighting is required, depending upon the use of the space.
Warm white is considered good for relaxing & intimate environment, to help prepare for sleep, and to create a warm welcoming atmosphere, and cool white is better for concentration & seeing detail.
The Colour Rendering Index (CRI) is another factor that is necessary to consider in hair salons where it is important to be able to see colours correctly1
What makes great Statement lighting?
Do you own a small boutique, salon or cafe, or restaurant? It’s vital to consider lighting if your aim is to transform your place of work and elevate your brand, or upscale your business in your customer’s mind.
When selecting a fixture, the mood and tone of the space that my client wants to make is important; is the space playful, serious, luxurious, modern? What other finishes are in the space? Does the light source have a ‘shade’, diffuser, or are the bulbs exposed?
The size & proportion of each fixture is considered in relation to the room and nearby elements, as is the quantity and position of each. Ceiling height is a factor that is often overlooked by clients, and can lead to very costly mistakes if the light fixture is too high for the ceiling.
Statement lighting fixtures come in various forms:
- Pendant lighting & chandeliers – position over tables and benches
- Wall lights & sconces – perfect for bathroom vanities, bedsides and hallways
- Floor, desk/task & table lamps – ideal for mobile lighting to illuminate work surfaces & reading area
Modern pendant lights and chandeliers come in so many styles, shapes and sizes, and are a far cry from the image that the word ‘chandelier’ brings to mind. Below are a range of modern and classic fixtures; I have used the Constellation Chandelier in the Absolu Hair Salon, and recently specified a smaller version of the Aim Small Pendant Light for an office reception area to set a casual & playful mood.






From top left: Disque Linear, Replica Jason Miller Modo Chandelier – 15, Constellation Chandelier 1200, Moooi Heracleum Round Suspension Light 106cm Replica, Aim Small Multipoint Pendant Light Replica – 5, Serge Mouille Ceiling Lamp – 6 Arm Replica
So, why Hire an Interior Designer?
Unfortunately many people get confused or intimidated by the idea of hiring a professional Interior Designer for their project, and might be concerned about the process of working with a designer & the costs of doing so.
A lot of people I meet feel that they can hire a builder and do the design themselves, selecting materials and fixtures in dribs and drabs, often at the last minute (leading to less choice) with poor planning & lack of an overall vision. This will lead increased costs due to changes, additions and variations that the builder will not have allowed for.
(please pin the below graphic to your pinterest board for reference)

You will save money & time. Your designer will plan functional and appealing spaces, provide drawings, visualisations & material / furnishing selections in a strategic manner so you can get competitive quotes, and you know what the design will look like & cost right from the start.
You require a Qualified Interior Designer & Registered Building Practitioner for any commercial project or residential project that requires a building permit; a proper interior designer is a highly trained & experienced registered professional, not just someone with ‘a good eye for colour’ and a knack for picking furniture.

Kara MacIsaac – Absolu Hair Salon
References:
Let’s make something beautiful together, book an appointment to explore your dream project.
Image: Omar Rodriguez @ormphotography



